CDLF系列輕型不銹鋼立式多級泵
以下為系列產品選型范圍,具體型號參考性能參數表
口徑范圍: 25-150 mm
流量范圍: 0.4-240 m3/h
揚程范圍: 13-305 m
材質:304、316、316L不銹鋼
常規產品全部現貨供應,縮短了交貨期。
應用領域: 供水:水廠過濾與輸送,水廠分區送水、主管增壓、高層建筑增壓。
產品介紹
輕型不銹鋼立式多級泵CDLF系列(以下簡稱多級離心泵)是吸取了國內外技術而設計制造的非自吸立式多級離心泵,采用標準立式電機和快裝式機械密封,更換非常方便。
CDL/CDLF輕型不銹鋼立式多級泵是一種多功能產品,可以輸送從自來水到工業液體的各種不同介質,適應于不同溫度、流量和壓力范圍,CDL適用于無腐蝕性液體,CDLF適用于輕度腐蝕性液體。泵的過流部分均采用不銹鋼(304\316)材料制成,可適用于輕度腐蝕性介質。該產品可替代國外CR、CRN等同類產品。產品投放市場后,以其高效節能、質量可靠、使用范圍廣等特點,深受廣大用戶的喜愛。
二、產品特征:
1、采用優良的水力模型制造工藝,大大提高泵的性能及使用壽命。
2、由于軸封采用材料為硬質合金及氟橡膠的機械密封,可提高泵運行的可靠性及輸送介質的溫度。
3、該不銹鋼多級泵的過流部分采用不銹鋼板沖壓焊接而成,使得泵可適用于輕度腐蝕性介質。
4、整體結構緊湊、體積小、重量輕、噪聲低、節能效果顯著,檢修方便。
5、輕型不銹鋼立式多級泵的進水口與出水口位于泵座同一水平線上,可直接用于管路當中。
6、采用標準電機,用戶可方便地根據需要配備電機。
7、可根據用戶需要配備智能保護器,對泵干轉、缺相、過載等進行有效保護。
三、產品用途:
1、供水:水廠過濾與輸送,水廠分區送水、主管增壓、高層建筑增壓。
2、工業增壓:流程水系統、清洗系統、高壓沖洗系統、消防系統。
3、工業液體輸送:冷卻和空調系統、鍋爐給水和冷凝系統、機床配套、酸和堿。
4、水處理:超濾系統、反滲透系統、蒸餾系統、分離器、游泳池。
5、灌溉:農田灌溉、噴灌、滴灌。
四、輸送介質:
1、稀薄、清潔、不含固體顆粒或纖維的非易燃易爆液體。
2、泵可以輸送諸如礦泉水、軟化水、純水、清油和其它輕化工介質。
3、當輸送液體的密度或粘度大于水,如需要,必須配用大功率電機。
4、泵是否適用于某一特定液體由多種因素決定,其中最重要的是氯含量、PH值、溫度和溶濟、油的含量等。
五、運行條件:
1、稀薄、干凈、非易燃易爆并不含固體顆粒或纖維的液體。
2、液體溫度:常溫型-15℃~+70℃、熱水型-15℃~+120℃。
3、環境溫度:最高+40℃。
4、海拔:最高1000m。
六、電機:
電機為全封閉,風冷式二極標準電機
防護等級:IP55
絕緣等級:F
標準電壓,
50Hz:
1×220-230/240V
3×200-220/346-380V
3×220-240/380-415V
3×380-415V
八、型號意義:
CDL F 4 — 120
| | | |
| | | |______ 級數×10
| | |
| | |__________ 額定流量m3/h
| |
| |_____________ 流過部件為不銹鋼(304或316)
|
|_________________ 輕型不銹鋼立式多級離心泵
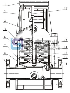
九、截面圖:

序號 | 零件名稱 | 材料 | 對照代號/AISI/ASTM |
1 | 電機 | | |
2 | 泵頭 | 鑄鐵 | ASTM25B |
4 | 機械密封 | | |
5 | 出水導葉 | 不銹鋼 | AISI304 |
6 | 導葉 | 不銹鋼 | AISI304 |
7 | 支撐導葉 | 不銹鋼 | AISI304 |
8 | 導流器 | 不銹鋼 | AISI304 |
11 | 軸承 | 碳化鎢 | |
12 | 葉輪 | 不銹鋼 | AISI304 |
13 | 軸 | 不銹鋼 | AISI304 |
14 | 葉輪隔套 | 不銹鋼 | AISI304 |
15 | 耐壓筒 | 不銹鋼 | AISI304 |
16 | 聯軸器 | 碳鋼 | |
CDLF |
3 | 泵頭襯里 | 不銹鋼 | AISI304 |
9 | 進出水段 | 不銹鋼 | AISI304 |
10 | 底座 | 鑄鐵 | ASTM25B |
CDL |
9 | 進出水段 | 鑄鐵 | ASTM25B |
參數表
型號 | | | 電機功率 | 轉速 |
| | (KW) | (r/min) |
CDL1-2 | 11.5 | 1 | 0.37 | 2900 |
CDL1-3 | 17 | 1 | 0.37 | 2900 |
CDL1-4 | 22.5 | 1 | 0.37 | 2900 |
CDL1-5 | 28 | 1 | 0.37 | 2900 |
CDL1-6 | 33.5 | 1 | 0.37 | 2900 |
CDL1-7 | 39 | 1 | 0.37 | 2900 |
CDL1-8 | 45 | 1 | 0.55 | 2900 |
CDL1-9 | 51 | 1 | 0.55 | 2900 |
CDL1-10 | 57 | 1 | 0.55 | 2900 |
CDL1-17 | 95 | 1 | 1.1 | 2900 |
CDL1-19 | 106 | 1 | 1.1 | 2900 |
CDL1-21 | 117 | 1 | 1.1 | 2900 |
CDL1-23 | 128 | 1 | 1.1 | 2900 |
CDL1-25 | 139 | 1 | 1.5 | 2900 |
CDL1-27 | 150 | 1 | 1.5 | 2900 |
CDL1-30 | 166 | 1 | 1.5 | 2900 |
CDL1-33 | 183 | 1 | 2.2 | 2900 |
CDL1-36 | 200 | 1 | 2.2 | 2900 |
CDL2-2 | 15 | 2 | 0.37 | 2900 |
CDL2-3 | 22 | 2 | 0.37 | 2900 |
CDL2-4 | 30 | 2 | 0.55 | 2900 |
CDL2-5 | 37 | 2 | 0.55 | 2900 |
CDL2-6 | 45 | 2 | 0.75 | 2900 |
CDL2-7 | 52 | 2 | 0.75 | 2900 |
CDL2-9 | 67 | 2 | 1.1 | 2900 |
CDL2-11 | 82 | 2 | 1.1 | 2900 |
CDL2-13 | 98 | 2 | 1.5 | 2900 |
CDL2-15 | 112 | 2 | 1.5 | 2900 |
CDL2-18 | 136 | 2 | 2.2 | 2900 |
CDL2-22 | 165 | 2 | 2.2 | 2900 |
CDL2-26 | 198 | 2 | 3.0 | 2900 |
CDL3-2 | 9 | 3 | 0.37 | 2900 |
CDL3-3 | 14 | 3 | 0.37 | 2900 |
CDL3-4 | 19 | 3 | 0.37 | 2900 |
CDL3-5 | 23 | 3 | 0.37 | 2900 |
CDL3-6 | 28 | 3 | 0.55 | 2900 |
CDL3-7 | 32 | 3 | 0.55 | 2900 |
CDL3-8 | 37 | 3 | 0.75 | 2900 |
CDL3-9 | 42 | 3 | 0.75 | 2900 |
CDL3-10 | 47 | 3 | 0.75 | 2900 |
CDL3-11 | 51 | 3 | 1.1 | 2900 |
CDL3-12 | 55 | 3 | 1.1 | 2900 |
CDL3-13 | 60 | 3 | 1.1 | 2900 |
CDL3-15 | 69 | 3 | 1.1 | 2900 |
CDL3-17 | 79 | 3 | 1.5 | 2900 |
CDL3-19 | 88 | 3 | 1.5 | 2900 |
CDL3-21 | 98 | 3 | 2.2 | 2900 |
CDL3-23 | 107 | 3 | 2.2 | 2900 |
CDL3-25 | 116 | 3 | 2.2 | 2900 |
CDL3-27 | 124 | 3 | 2.2 | 2900 |
CDL3-29 | 133 | 3 | 2.2 | 2900 |
CDL3-31 | 142 | 3 | 3 | 2900 |
CDL3-33 | 151 | 3 | 3 | 2900 |
CDL3-36 | 168 | 3 | 3 | 2900 |
CDL4-2 | 15 | 4 | 0.37 | 2900 |
CDL4-3 | 24 | 4 | 0.55 | 2900 |
CDL4-4 | 32 | 4 | 0.75 | 2900 |
CDL4-5 | 40 | 4 | 1.1 | 2900 |
CDL4-6 | 48 | 4 | 1.1 | 2900 |
CDL4-7 | 56 | 4 | 1.5 | 2900 |
CDL4-8 | 64 | 4 | 1.5 | 2900 |
CDL4-10 | 81 | 4 | 2.2 | 2900 |
CDL4-12 | 95 | 4 | 2.2 | 2900 |
CDL4-14 | 112 | 4 | 3 | 2900 |
CDL4-16 | 129 | 4 | 3 | 2900 |
CDL4-19 | 153 | 4 | 4 | 2900 |
CDL4-22 | 178 | 4 | 4 | 2900 |
CDL8-2/1 | 9 | 8 | 0.75 | 2900 |
CDL8-2 | 18 | 8 | 0.75 | 2900 |
CDL8-3 | 27 | 8 | 1.1 | 2900 |
CDL8-4 | 36 | 8 | 1.5 | 2900 |
CDL8-5 | 45 | 8 | 2.2 | 2900 |
CDL8-6 | 54 | 8 | 2.2 | 2900 |
CDL8-8 | 73 | 8 | 3.0 | 2900 |
CDL8-10 | 92 | 8 | 4.0 | 2900 |
CDL8-12 | 111 | 8 | 4.0 | 2900 |
CDL8-14 | 130 | 8 | 5.5 | 2900 |
CDL8-16 | 148 | 8 | 5.5 | 2900 |
CDL8-18 | 167 | 8 | 7.5 | 2900 |
CDL8-20 | 186 | 8 | 7.5 | 2900 |
CDL12-2 | 20 | 12 | 1.5 | 2900 |
CDL12-3 | 30 | 12 | 2.2 | 2900 |
CDL12-4 | 40 | 12 | 3 | 2900 |
CDL12-5 | 50 | 12 | 3 | 2900 |
CDL12-6 | 60 | 12 | 4 | 2900 |
CDL12-7 | 70 | 12 | 5.5 | 2900 |
CDL12-8 | 80 | 12 | 5.5 | 2900 |
CDL12-9 | 91 | 12 | 5.5 | 2900 |
CDL12-10 | 101 | 12 | 7.5 | 2900 |
CDL12-12 | 121 | 12 | 7.5 | 2900 |
CDL12-14 | 141 | 12 | 11 | 2900 |
CDL12-16 | 162 | 12 | 11 | 2900 |
CDL12-18 | 183 | 12 | 11 | 2900 |
CDL16-2 | 22 | 16 | 2.2 | 2900 |
CDL16-3 | 34 | 16 | 3.0 | 2900 |
CDL16-4 | 46 | 16 | 4.0 | 2900 |
CDL16-5 | 58 | 16 | 5.5 | 2900 |
CDL16-6 | 70 | 16 | 5.5 | 2900 |
CDL16-7 | 82 | 16 | 7.5 | 2900 |
CDL16-8 | 94 | 16 | 7.5 | 2900 |
CDL16-10 | 118 | 16 | 11 | 2900 |
CDL16-12 | 141 | 16 | 11 | 2900 |
CDL16-14 | 166 | 16 | 15 | 2900 |
CDL16-16 | 189 | 16 | 15 | 2900 |
CDL20-1 | 10 | 20 | 1.1 | 2900 |
CDL20-2 | 23 | 20 | 2.2 | 2900 |
CDL20-3 | 35 | 20 | 4.0 | 2900 |
CDL20-4 | 47 | 20 | 5.5 | 2900 |
CDL20-5 | 58 | 20 | 5.5 | 2900 |
CDL20-6 | 70 | 20 | 7.5 | 2900 |
CDL20-7 | 82 | 20 | 7.5 | 2900 |
CDL20-8 | 94 | 20 | 11 | 2900 |
CDL20-10 | 118 | 20 | 11 | 2900 |
CDL20-12 | 142 | 20 | 15 | 2900 |
CDL20-14 | 166 | 20 | 15 | 2900 |
CDL20-17 | 202 | 20 | 18.5 | 2900 |
CDL32-10-1 | 9 | 32 | 1.5 | 2900 |
CDL32-10 | 13 | 32 | 2.2 | 2900 |
CDL32-20-2 | 20 | 32 | 3.0 | 2900 |
CDL32-20 | 27 | 32 | 4.0 | 2900 |
CDL32-30-2 | 33 | 32 | 5.5 | 2900 |
CDL32-30 | 40 | 32 | 5.5 | 2900 |
CDL32-40-2 | 46 | 32 | 7.5 | 2900 |
CDL32-40 | 53 | 32 | 7.5 | 2900 |
CDL32-50-2 | 60 | 32 | 11 | 2900 |
CDL32-50 | 67 | 32 | 11 | 2900 |
CDL32-60-2 | 74 | 32 | 11 | 2900 |
CDL32-60 | 81 | 32 | 11 | 2900 |
CDL32-70-2 | 88 | 32 | 15 | 2900 |
CDL32-70 | 95 | 32 | 15 | 2900 |
CDL32-80-2 | 102 | 32 | 15 | 2900 |
CDL32-80 | 109 | 32 | 15 | 2900 |
CDL32-90-2 | 117 | 32 | 18.5 | 2900 |
CDL32-90 | 124 | 32 | 18.5 | 2900 |
CDL32-100-2 | 131 | 32 | 18.5 | 2900 |
CDL32-100 | 138 | 32 | 18.5 | 2900 |
CDL32-110-2 | 146 | 32 | 22 | 2900 |
CDL32-110 | 153 | 32 | 22 | 2900 |
CDL32-120-2 | 160 | 32 | 22 | 2900 |
CDL32-120 | 167 | 32 | 22 | 2900 |
CDL32-130-2 | 174 | 32 | 30 | 2900 |
CDL32-130 | 181 | 32 | 30 | 2900 |
CDL32-140-2 | 189 | 32 | 30 | 2900 |
CDL32-140 | 196 | 32 | 30 | 2900 |
CDL42-10-1 | 16 | 42 | 3.0 | 2900 |
CDL42-10 | 20 | 42 | 4.0 | 2900 |
CDL42-20-2 | 32 | 42 | 5.5 | 2900 |
CDL42-20 | 41 | 42 | 7.5 | 2900 |
CDL42-30-2 | 52 | 42 | 11 | 2900 |
CDL42-30 | 61 | 42 | 11 | 2900 |
CDL42-40-2 | 73 | 42 | 15 | 2900 |
CDL42-40 | 81 | 42 | 15 | 2900 |
CDL42-50-2 | 93 | 42 | 18.5 | 2900 |
CDL42-50 | 101 | 42 | 18.5 | 2900 |
CDL42-60-2 | 113 | 42 | 22 | 2900 |
CDL42-60 | 122 | 42 | 22 | 2900 |
CDL42-70-2 | 134 | 42 | 30 | 2900 |
CDL42-70 | 142 | 42 | 30 | 2900 |
CDL42-80-2 | 154 | 42 | 30 | 2900 |
CDL42-80 | 162 | 42 | 30 | 2900 |
CDL42-90-2 | 174 | 42 | 30 | 2900 |
CDL42-90 | 183 | 42 | 37 | 2900 |
CDL42-100-2 | 194 | 42 | 37 | 2900 |
CDL42-100 | 203 | 42 | 37 | 2900 |
CDL42-110-2 | 217 | 42 | 45 | 2900 |
CDL42-110 | 225 | 42 | 45 | 2900 |
CDL42-120-2 | 238 | 42 | 45 | 2900 |
CDL42-120 | 247 | 42 | 45 | 2900 |
CDL42-130-2 | 259 | 42 | 45 | 2900 |
CDL65-10-1 | 13 | 65 | 4.0 | 2900 |
CDL65-10 | 20 | 65 | 5.5 | 2900 |
CDL65-20-2 | 26 | 65 | 7.5 | 2900 |
CDL65-20-1 | 33 | 65 | 11 | 2900 |
CDL65-20 | 40 | 65 | 11 | 2900 |
CDL65-30-2 | 46 | 65 | 15 | 2900 |
CDL65-30-1 | 53 | 65 | 15 | 2900 |
CDL65-30 | 60 | 65 | 18.5 | 2900 |
CDL65-40-2 | 66 | 65 | 18.5 | 2900 |
CDL65-40-1 | 73 | 65 | 22 | 2900 |
CDL65-40 | 80 | 65 | 22 | 2900 |
CDL65-50-2 | 88 | 65 | 30 | 2900 |
CDL65-50-1 | 95 | 65 | 30 | 2900 |
CDL65-50 | 102 | 65 | 30 | 2900 |
CDL65-60-2 | 110 | 65 | 30 | 2900 |
CDL65-60-1 | 117 | 65 | 37 | 2900 |
CDL65-60 | 124 | 65 | 37 | 2900 |
CDL65-70-2 | 132 | 65 | 37 | 2900 |
CDL65-70-1 | 139 | 65 | 37 | 2900 |
CDL65-70 | 146 | 65 | 45 | 2900 |
CDL65-80-2 | 154 | 65 | 45 | 2900 |
CDL65-80-1 | 161 | 65 | 45 | 2900 |
CDL85-10-1 | 14 | 85 | 5.5 | 2900 |
CDL85-10 | 20 | 85 | 7.5 | 2900 |
CDL85-20-2 | 30 | 85 | 11 | 2900 |
CDL85-20 | 41 | 85 | 15 | 2900 |
CDL85-30-2 | 52 | 85 | 18.5 | 2900 |
CDL85-30 | 64 | 85 | 22 | 2900 |
CDL85-40-2 | 75 | 85 | 30 | 2900 |
CDL85-40 | 86 | 85 | 30 | 2900 |
CDL85-50-2 | 98 | 85 | 37 | 2900 |
CDL85-50 | 110 | 85 | 37 | 2900 |
CDL85-60-2 | 122 | 85 | 45 | 2900 |
CDL85-60 | 134 | 85 | 45 | 2900 |
CDL120-10 | 18.5 | 120 | 11 | 2950 |
CDL120-20-1 | 34.5 | 120 | 18.5 | 2950 |
CDL120-20 | 40 | 120 | 22 | 2950 |
CDL120-30 | 61 | 120 | 30 | 2950 |
CDL120-40-1 | 76 | 120 | 37 | 2950 |
CDL120-50-1 | 97 | 120 | 45 | 2950 |
CDL120-60-1 | 118 | 120 | 55 | 2950 |
CDL120-70 | 145 | 120 | 75 | 2950 |
CDL150-10-1 | 12.5 | 150 | 11 | 2950 |
CDL150-10 | 18.5 | 150 | 15 | 2950 |
CDL150-20-1 | 35 | 150 | 22 | 2950 |
CDL150-30-2 | 49 | 150 | 30 | 2950 |
CDL150-30 | 63 | 150 | 37 | 2950 |
CDL150-40-1 | 77 | 150 | 45 | 2950 |
CDL150-50-2 | 92 | 150 | 55 | 2950 |
CDL150-60 | 130 | 150 | 75 | 2950 |
因產品生產批次、型號不同,產品圖片及外形尺寸等僅供參考,詳情可聯系我們的銷售人員